Trilocale in vendita

Pomezia, Via Oceano Atlantico - Torvaianica Alta
€ 239.000
Prezzo aggiornato
3 locali 3 locali
140 Mq 140 Mq
2 bagni 2 bagni

Trilocale in vendita

Pomezia, Via Oceano Atlantico - Torvaianica Alta

Descrizione annuncio

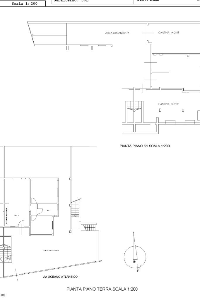
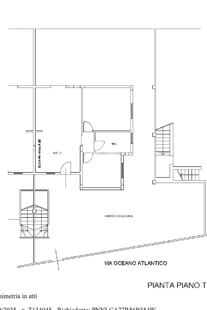
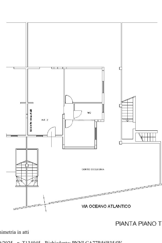
Torvaianica Alta - Via Oceano Atlantico. A pochi chilometri dal centro e dal mare proponiamo la vendita di un appartamento in villa al piano terra con sala hobby. La soluzione si compone di salone con angolo cottura, camera e cameretta, bagno finestrato con vasca e doccia. Al seminterrato, con accesso esterno dal giardino, invece troviamo la sala hobby con camino, ripostiglio e bagno con doccia. Completano la proprietà un giardino fronte/retro e un comodo box auto. Per ulteriori informazioni o per prendere un appuntamento, è possibile contattarci al numero 06.9104066 o tramite messaggio Whatsapp: 3703648473

Mostra tutto

Nelle vicinanze

Ricariche auto elettriche Ricariche auto elettriche
Torvajanica Levante | EnelX
1,8 Km
Torvajanica Via Signa | EnelX
1,9 Km
IN'S Mercato Torvaianica | Lampionet
2,3 Km
Eneldrive Centro Commerciale Sedici Pini
2,4 Km
Pomezia Odisseo | EnelX
2,6 Km
Scuole Scuole
Istituto Comprensivo Enea
1,7 Km
Scuola elementare e media Via Verona Ardea III c.f. 97714420581
2,3 Km
Istituto Largo Brodolini
2,7 Km
Istituto d'Istruzione Superiore "Blaise Pascal"
3,0 Km
Farmacia Farmacia
Farmacia Bartolomucci
3,0 Km
Supermercati Supermercati
CRAI
550 m
Conad
2,1 Km
Centro Commerciale Sedici Pini
2,4 Km
GESAD
2,6 Km
Supermercato Carrefour Market
2,7 Km
Negozi Negozi
Negozi
1,7 Km
Ristoranti Ristoranti
Il Rifugio di Pasa
2,8 Km
Al Colle
2,9 Km
Mostra tutto

Caratteristiche

Rif.:
61135331
Piano:
Terra con giardino di 2
Totale piani:
2
Box:
1
Camere da letto:
2
Arredamento:
Assente
Mostra tutto
Prezzo Prezzo
€ 239.000
Rata mutuo Rata mutuo
€ 1.116 / mese
Spese annue Spese annue
€ 240
Proponi il tuo prezzoProponi il tuo prezzo

Classe Energetica

Questo immobile è esente da classe energetica
Anno di costruzione:
1995
Riscaldamento:
Autonomo
Tipo impianto:
A radiatori
Tipo alimentazione:
Metano

Prezzo ridotto di €1 (5%%)

Ti interessa visionare l'immobile?

Fissa un appuntamento  Fissa un appuntamento

Richiedi informazioni

Clicca su Leggi per aprire l'informativa
* Questi campi sono obbligatori

Calcola il tuo mutuo

Semplice e senza impegno
Anticipo

( % )
Mutuo

( % )

pochi semplici passi

inserisci i tuoi dati
Questionario completato
Grazie per aver richiesto un appuntamento senza impegno con un nostro Consulente del Credito e Assicurativo.

Hai inserito correttamente tutti i dati necessari e a breve riceverai una e-mail con un link da convalidare per inviare i tuoi dati.
Affiliato
Immobiliare Pomezia Srls
Via Roma, 129 00040 Pomezia (RM)
Via Roma, 129 00040 Pomezia (RM)
Zona: Pomezia
Mostra su mappa
Orari: Lunedì - Venerdi 09,00-13,00 15.30-19,30 Sabato 09,00 - 13,00 Domenica su appuntamento.
Affiliato
Immobiliare Pomezia Srls
Via Roma, 129 00040 Pomezia (RM)

2026 Tecnocasa Franchising S.p.A. - P. IVA 08365160152 - Via Monte Bianco 60/A 20089 Rozzano (MI). Ogni agenzia ha un proprio titolare ed è autonoma. Privacy policy | Policy utilizzo | Cookie policy